
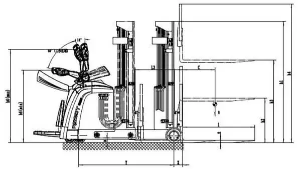
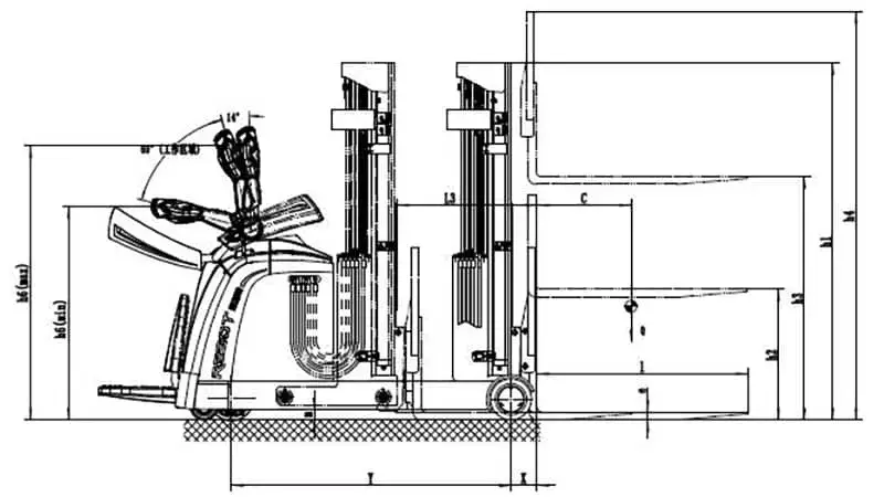
رافعة شوكية كهربائية للمناولة في المساحات الضيقةElectric Reach Truck
رافعة التخزين الكهربائية حل فعال للمستودعات ذات الممرات الضيقة، مصممة للعمل في مساحات لا تتجاوز مترين عرضًا. يمكن تحريك صاريها للأمام لرفع ووضع المنصات بسهولة، مما يمكن من المناولة بسلاسة في المساحات الضيقة. تعمل ببطارية ليثيوم، وتدعم ما يصل إلى 8 ساعات من التشغيل المتواصل. بقدرة رفع تبلغ 1.6 طن وارتفاع رفع أقصى يصل إلى 5 أمتار، تُعدّ مثاليةً للتخزين على الرفوف العالية وتطبيقات المستودعات ذات الكثافة العالية.
- سعة التحميل: 1.4 طن
- أقصى ارتفاع للرفع: 6 أمتار
| الخصائص | الموديل |
|
|
|
| نمط القيادة | كهربائي | كهربائي | كهربائي | |
| نمط التشغيل | نمط المشي | نمط المشي | نمط المشي | |
| سعة الحمولة المقننة، Q (tons) | 1600 | 1600 | 2000 | |
| مسافة مركز الحمولة، C (mm) | 500 | 500 | 500 | |
| مسافة التعليق الأمامي، X (mm/s) | 110 | 133 | 110 | |
| قاعدة العجلات، Y (mm) | 1325 | 1425 | 1475 | |
| الوزن | وزن المركبة (kg) | 2323 | 2562 | 2369 |
| حمل المحور (حمولة كاملة) جانب القيادة/جانب التحميل (kg) | 1598/2325 | 1680/2520 | 1569/2800 | |
| حمل المحور (بدون حمولة) جانب القيادة/جانب التحميل (kg) | 1639/684 | 1820/780 | 1652/717 | |
| العجلات | نوع الإطار | البولي يوريثان (PU) | البولي يوريثان (PU) | البولي يوريثان (PU) |
| مقاس الإطار، عجلة القيادة (mm) | Ø230×75 | Ø230×75 | Ø230×75 | |
| مقاس الإطار، عجلة التحميل (mm) | Ø210×85 | Ø210×85 | Ø210×85 | |
| مقاس الإطار، عجلة التوازن (mm) | Ø140×60 | Ø140×60 | Ø140×60 | |
| عدد العجلات: عجلة القيادة / عجلة التحميل (x = عجلة القيادة) | 1x-2/2 | 1x-2/2 | 1x-2/2 | |
| عرض مسار العجلات، جانب السائق (mm) | 696 | 696 | 696 | |
| عرض مسار العجلات، جانب التحميل (mm) | 985 | 985 | 985 | |
| الأبعاد الأساسية | ارتفاع الصاري عند طيه، h1 (mm) | 2015 | 1980 | 2015 |
| ارتفاع الرفع الحر، h2 (mm) | 0 | 1220 | 0 | |
| ارتفاع الرفع، h3 (mm) | 3000 | 4500 | 2500 | |
| ارتفاع الصاري عند تمديده، h4 (mm) | 3912 | 5350 | 3412 | |
| الحد الأدنى/الأقصى لارتفاع المقبض، h6 (مم) | 1084/1392 | 1084/1392 | 1084/1392 | |
| ارتفاع الشوكة (في أدنى وضعية)، h5 (mm) | 40 | 40 | 40 | |
| طول المركبة، L1 (mm) | 2248 | 2348 | 2398 | |
| المسافة من سطح الشوكة إلى الأمام، L2 (mm) | 1178 | 1278 | 1328 | |
| العرض الكلي، b1 (mm) | 1090 | 1090 | 1090 | |
| مقاس الشوكة، l/e/s (mm) | 40/100/950 | 40/100/950 | 40/100/950 | |
| عرض الشوكة الخارجي، b5 (mm) | 215-754 | 215-754 | 215-754 | |
| الحد الأدنى للخلوص الأرضي،m (mm) | 55 | 55 | 55 | |
| عرض ممر التكديس بزاوية قائمة، منصة نقالة 1000×1200 (1200 موضوعة عرضياً على الشوكة)، Ast (mm) | 2652/2972 | 2752/3072 | 2802/3122 | |
| عرض ممر التكديس بزاوية قائمة، منصة نقالة 800×1200 (1200 موضوعة طولياً على الشوكة)، Ast (mm) | 2682/3002 | 2782/3102 | 2832/3152 | |
| الحد الأدنى لنصف قطر الدوران، Wa (mm) | 1658/1978 | 1758/2078 | 1808/2128 | |
| الأداء | سرعة القيادة، حمولة كاملة/بدون حمولة (km/h) | 5/6 | 5/6 | 5/6 |
| سرعة الرفع، حمولة كاملة/بدون حمولة (mm/s) | 90/120 | 90/120 | 90/120 | |
| سرعة الخفض، حمولة كاملة/بدون حمولة (mm/s) | 120/85 | 120/85 | 120/85 | |
| أقصى قدرة على الصعود، حمولة كاملة/بدون حمولة (%) | 5/8 | 5/8 | 5/8 | |
| نوع الفرامل | مكابح كهرومغناطيسية | مكابح كهرومغناطيسية | مكابح كهرومغناطيسية | |
| المحرك الكهربائي | قدرة محرك التشغيل، S2: 60 دقيقة (kW) | 1.8 | 1.8 | 1.8 |
| قدرة محرك الرفع، S3: 15% (kW) | 3 | 3 | 3 | |
| قدرة محرك التوجيه، S3: 10% (kW) | 0.16 | 0.16 | 0.16 | |
| نوع البطارية، وفقاً للمعيار DIN43531/35/36 A، B، C، NO | B 3PZS | B 3PZS | B 3PZS | |
| جهد البطارية/السعة المقدرة (5 ساعات تفريغ) (V/Ah) | 24/240 | 24/240 | 24/270 | |
| وزن البطارية (kg) | 240 | 240 | 270 | |
| أخرى | نوع التحكم في القيادة والرفع | تحكم في السرعة | تحكم في السرعة | تحكم في السرعة |
| مستوى الصوت في أذن السائق، وفقاً للمعيار EN12053 (dB(A)) | ≤75 | ≤75 | ≤75 |
عرض التفاصيل
مجموعة التوجيه
هل تبحث عن مركبات تجارية موثوقة لمشروعك القادم؟
- بفضل قدرات التصنيع عالية الدقة، نستطيع تحقيق دقة قطع تبلغ ±0.25 مم وخشونة سطح تتراوح بين 25 ميكرومتر و50 ميكرومتر، مما يضمن الحصول على أجزاء دقيقة ومتسقة.
- تلبي معدات الثني والتشكيل المتقدمة متطلبات تشكيل الصفائح المعدنية لأنواع متعددة من المركبات، مما يتيح التشكيل لمرة واحدة بأبعاد دقيقة.
- تتوفر أكثر من عشر طرق لحام متخصصة للتعامل مع المكونات ذات الأحجام المختلفة. كما تضمن معدات اللحام الآلية القوة والاتساق والمتانة.
- توفر مرافق السفع الرملي والطلاء والتجفيف المخصصة مقاومة للتآكل وتشطيبات تدوم طويلاً للمركبات.
تواصل معنا






